HOME
PLAN
X
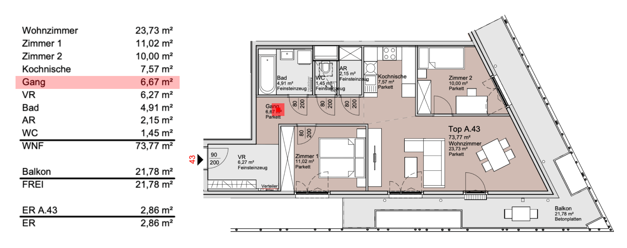
Wohnzimmer
Zimmer 01
Zimmer 2
Küche
Gang
Vorraum
Bad
Abstellraum
WC