HOME
PLAN
X
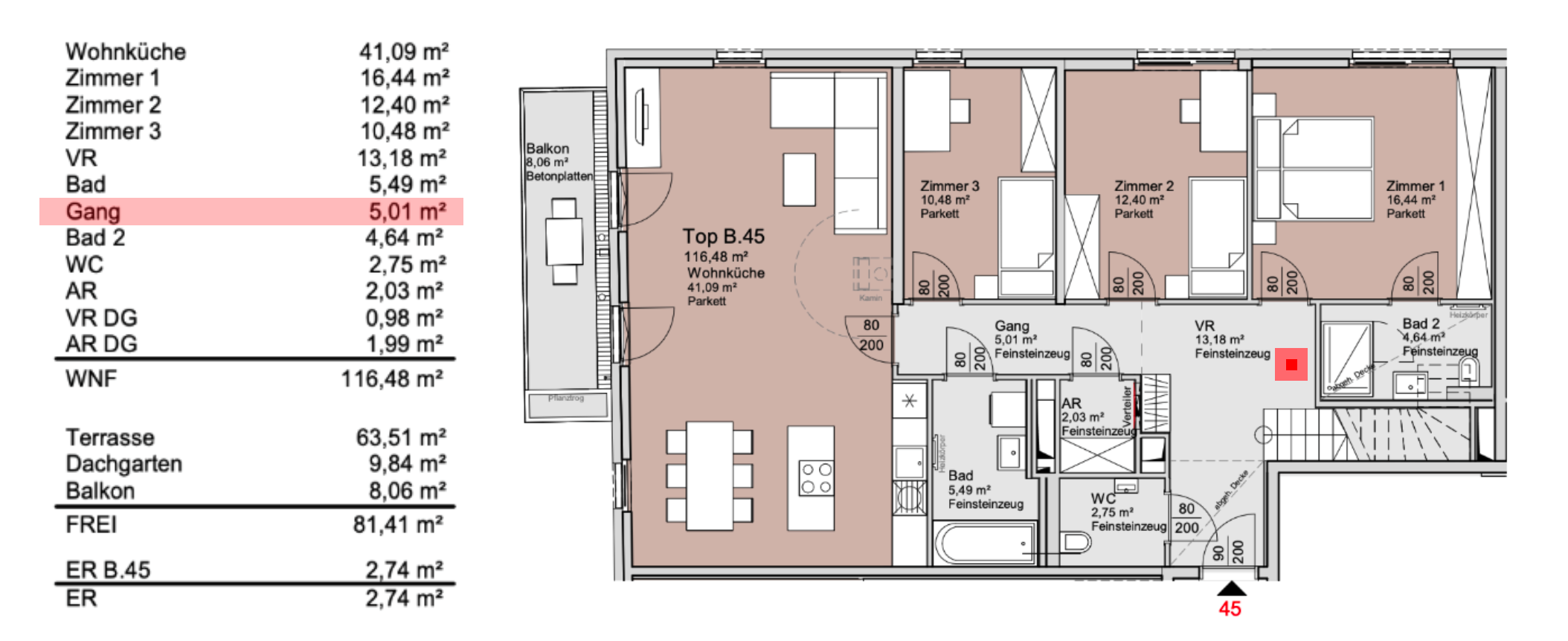
Wohnküche
Zimmer 1
Zimmer 2
Zimmer 3
VR
Bad
Gang
Bad 2
WC
AR